
执行标准
| 防爆阔杆/全通径 | |
| 适用温度范围 | -20 to120℃ |
| 使用压力 | ≤1.6MPa |
| 适用介质 | 水、气、油 |
| 设计制造 | GB/T-12224/ANSIB16.34 |
| 螺纹标准 | BSPT/BSP/NPT/DIN/JIS/RC/G |
| 检查与测试 | GB/T-13927/API598 |
| 气压测试 | 1.6MPa |
材料列表
| 部件名称 | 材质 | ||
| 阀体 | CF8M | CF8 | WCB |
| 阀盖 | CF8M | CF8 | WCB |
| 球 | SS316 | SS304 | SS304 |
| 阀杆 | SS316 | SS304 | SS304 |
| 阀座 | PTFE | RPTFE | PTFE |
| 线条 | PTFE | PTFE | PTFE |
| 杆密封 | PTFE | PTFE | PTFE |
| 中头垫 | PTFE | PTFE | PTFE |
| 填料压套 | SS202 | SS202 | SS202 |
| 手柄 | SS202 | SS202 | SS202 |
| 弹垫 | SS202 | SS202 | SS202 |
| 螺帽 | SS202 | SS202 | SS202 |
| 锁片 | SS202 | SS202 | SS202 |
| 胶套 | PLASTIC | PLASTIC | PLASTIC |
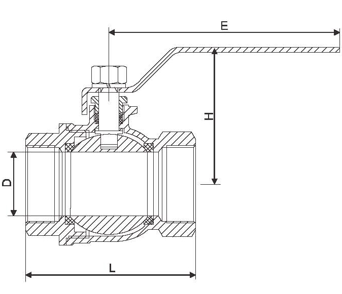
外形尺寸
| DN | L | D | H | E |
| 15 | 62.5 | 9 | 52 | 118 |
| 20 | 70 | 12.5 | 54 | 118 |
| 25 | 86 | 16 | 66 | 140 |
| 32 | 94 | 20 | 72 | 150 |
| 40 | 102 | 25 | 75 | 155 |
| 50 | 114 | 32 | 81 | 155 |





浙公网安备 33039902000169号